【成約済】
A-1114 山田東4丁目貸店舗
- 成約物件
担当者のおすすめポイント
- 登録日
- 2018年4月4日
- 次回更新予定日
- 2020年03月26日
成約時には仲介手数料として賃料の1ヶ月分と消費税を頂戴致します。
掲載されている物件データが現況と異なる場合は現況を優先します。
- 物件種目
- 貸店舗
- 住所
- 吹田市山田東4丁目
- 最寄駅
大阪モノレール線「山田駅」より徒歩約8分
阪急千里線「山田駅」より徒歩約9分
- 賃料
- 885,600円(税込)
- 管理費/共益費
- 自主管理
- 保証金
- ー
- 解約引
- 相談
- 敷金
- -
- 礼金
- -
- 敷地面積
- 各階面積
- 延床面積
- 163.56m²(約 49.47坪)
- 建物構造
- 鉄筋コンクリート造・地上5階建
- 築年月
- 1980年4月(昭和55年)
- 用途地域
- 賃貸対象
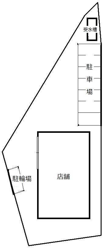
- 1階部分
- 駐車スペース
- 7台分有り
- 接道状況
- 設備
- 入居時期
- 相談
- 取引態様
- 媒介
- 備考
解約引 スライド式
現在 セブンイレブン
諸条件相談可現在コンビニ営業中。
目立つ立地でさらに駐車スペース7台分あり!



