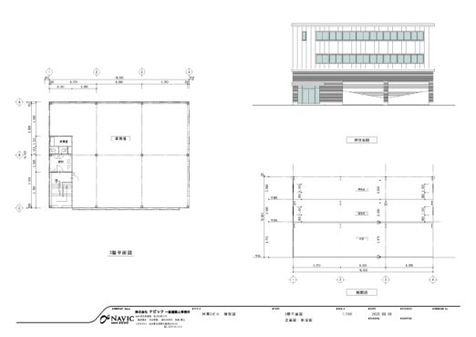
前面空地付きの3階建て倉庫事務所
A-1409 SL-111 倉庫兼事務所
- 吹田(江坂駅周辺)
- エリア
- 物件の広さ
- 賃料
- 事務所付き倉庫
- 手数料無料
- 多層階事務所付き倉庫
- 前面空地付き倉庫
- 当社管理物件
- 150坪以上~300坪未満
- 150万円以上
担当者のおすすめポイント
最寄りの大阪メトロ御堂筋線「江坂」駅まで徒歩約14分と、
従業員様の通勤にも便利な立地。
倉庫・事務所として幅広い業種に対応可能で、各種ご相談も柔軟にお受けします。
.
.
【㈱スペース・リーダーYouTubeページ】
弊社の企画・管理物件の紹介をしています。
建築風景から完成後の外観・内観までご覧いただけます。
- 登録日
- 2026年2月4日
- 次回更新予定日
- 随時
掲載されている物件データが現況と異なる場合は現況を優先します。
- 物件種目
- 貸倉庫事務所
- 住所
- 大阪府吹田市南吹田5-16-8
- 最寄駅
JRおおさか東線「南吹田」駅まで徒歩約12分
大阪メトロ御堂筋線「江坂」駅まで徒歩約14分
- 賃料
- 1,650,000円 (税込)
- 管理費/共益費
- 自主管理
- 保証金
- ー
- 解約引
- ー
- 敷金
- 6,000,000円 (総額)
- 礼金
- 3,000,000円 (別途消費税)
- 敷地面積
- 431.78m²(約130.61坪)
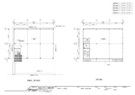
- 各階面積
- 1階 259.00㎡(78.34坪)倉庫
2階 259.00㎡(78.34坪)事務所
3階 259.00㎡(78.34坪)事務所
- 延床面積
- 777.00m²(約 235.04坪)
- 建物構造
- 鉄骨造亜鉛メッキ鋼板葺・地上3階建
- 築年月
- 1990年11月(平成2年)
- 用途地域
- 第一種住居地域
- 賃貸対象
- 一棟貸
- 駐車スペース
- 前面空地有り(無料)
- 接道状況
- 南側幅員約8.5m(公道)
- 設備
- 入居時期
- 相談
- 取引態様
- 貸主
- 備考
トイレ、キッチン、電動シャッター







