江坂駅近くの1階貸店舗事務所
A-1425 吹田市広芝町 貸店舗・事務所
- 吹田(江坂駅周辺)
- エリア
- 物件の広さ
- 賃料
- 1階店舗・事務所倉庫
- 30坪未満
- 30万円以上~50万円未満
担当者のおすすめポイント
大阪メトロ御堂筋線「江坂」駅まで徒歩約5分
14階建マンションの1階部分店舗事務所です。
入口は仕様変更予定、室内はスケルトンでの引渡しが可能です。
天井高も3mございます。
引渡し状態、給排水等ご相談可能な物件ですので、
是非一度ご検討くださいませ。
- 登録日
- 2026年2月9日
- 次回更新予定日
- 随時
成約時には仲介手数料として賃料の1ヶ月分と消費税を頂戴致します。
掲載されている物件データが現況と異なる場合は現況を優先します。
- 物件種目
- 貸店舗事務所
- 住所
- 大阪府吹田市広芝町
- 最寄駅
大阪メトロ御堂筋線「江坂」駅まで徒歩約5分
- 賃料
- 337,700円 (税込)
- 管理費/共益費
- 自主管理
- 保証金
- ー
- 解約引
- ー
- 敷金
- 2,456,000円 (総額)
- 礼金
- ー
- 敷地面積
- 各階面積
- 延床面積
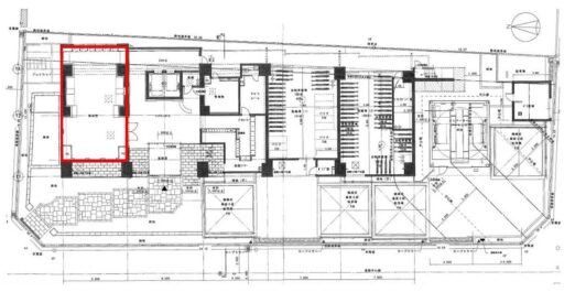
- 84.39m²(約 25.52坪)
- 建物構造
- 鉄筋コンクリート造・地上14階建
- 築年月
- 2009年9月(平成21年)
- 用途地域
- 商業地域
- 賃貸対象
- 1階部分
- 駐車スペース
- 機械式駐車場有り(全長:5,050㎜ 全幅:1,850㎜ 全高:1,550㎜ 重量:2,050㎏)
- 接道状況
- 設備
- 空調(残置物)
- 入居時期
- 相談
- 取引態様
- 媒介
- 備考
スケルトン渡し
(契約締結後着工予定・約3ヶ月)
(現状有姿応相談)
天井高 梁下:3,300㎜ 有効:3,000㎜
電気 電灯:4KVA 動力:2.9KW
ガス:無し
給排水:現況引き込み無し
(オーナー負担にて引渡しまでに引き込み)
入り口部分のサッシ、植栽は仕様変更予定
普通借契約:5年
短期解約違約金有り
(3年未満:賃料6ヶ月分 5年未満:賃料3ヶ月分 初回契約更新日以降:無し)



