【成約済】
A-322 吹田市内本町2丁目 貸倉庫事務所
- 成約物件
担当者のおすすめポイント
阪急千里線「吹田」駅より徒歩約7分
JR京都線「吹田」駅より徒歩約13分と徒歩でのアクセスも抜群な立地です!!
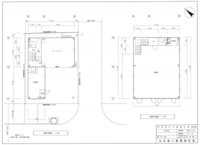
1階部分は、駐車スペース完備で倉庫+事務所の作りになっています。
2階部分は事務室になっており、給湯室も完備しています!
大阪内環状線沿いで角地に立地になりますので、自動車の通行や駐車スペースへの出入りも便利です。
事務所がメインで使用される場合には、一階倉庫部分を駐車スペースとして使用することも可能です。
床暖房や空気清浄器が残置物扱いで残っていますので、事務所スペースも快適に使用していただけます。
自動のブラインドサッシもついていますので、快適な設備で事務所としては最適です。
自社ビルのような使い方ができ、角地ということで視認性もよい物件です。
貸倉庫兼事務所をお探しの方、気になる点ございましたらお気軽にお問合せください!!
- 登録日
- 2019年11月21日
- 次回更新予定日
- 随時
成約時には仲介手数料として賃料の1ヶ月分と消費税を頂戴致します。
掲載されている物件データが現況と異なる場合は現況を優先します。
- 物件種目
- 貸倉庫事務所
- 住所
- 大阪府吹田市内本町2丁目
- 最寄駅
阪急千里線「吹田」駅より徒歩約7分
JR京都線「吹田」駅より徒歩約13分
- 賃料
- 440,000円 (税込)
- 管理費/共益費
- 16,500円 (税込)
- 保証金
- 2,400,000円 (別途消費税)
- 解約引
- 1,200,000円 (別途消費税)
- 敷金
- ー
- 礼金
- ー
- 敷地面積
- 各階面積
- 1階 72.33㎡(21.87坪)倉庫・事務所
2階 108.29㎡(32.75坪)事務所
- 延床面積
- 180.62m²(約 54.63坪)
- 建物構造
- 鉄骨造陸屋根・地上2階建
- 築年月
- 2009年11月(平成21年)
- 用途地域
- 近隣商業地域
- 賃貸対象
- 一棟貸
- 駐車スペース
- 前面空地2台駐車可(無料)、1階倉庫内にも2台入庫可
- 接道状況
- 南西側幅員24m(内環状線) 南東側幅員4.55m
- 設備
- エアコン(2階)、トイレ、洗面所、電動シャッター、電気温水器、ウォシュレット(1階2階)、LED照明器具(1階2階・一部取替)、床暖房(残置物)、自動ブラインドサッシ(残置物)、空気清浄機(残置物)、綜合警備導入(カードキー、テレビモニター付インターホン)※契約決済後に取付、共益費に含む
- 入居時期
- 相談
- 取引態様
- 媒介
- 備考
1階最高天井高:3.1m 1階シャッター高:3.1m
2階最高天井高:2.5m
確認通知書、検査済証有り(1階一部 事務所をフリースペース変更)
火災保険加入要
賃貸保証加入の場合有り





