【成約済】
A-599-2 SLコンパクトオフィス(SL-31)
- 成約物件
担当者のおすすめポイント
- 登録日
- 2023年7月3日
- 次回更新予定日
- 随時
成約時には仲介手数料として賃料の1ヶ月分と消費税を頂戴致します。
掲載されている物件データが現況と異なる場合は現況を優先します。
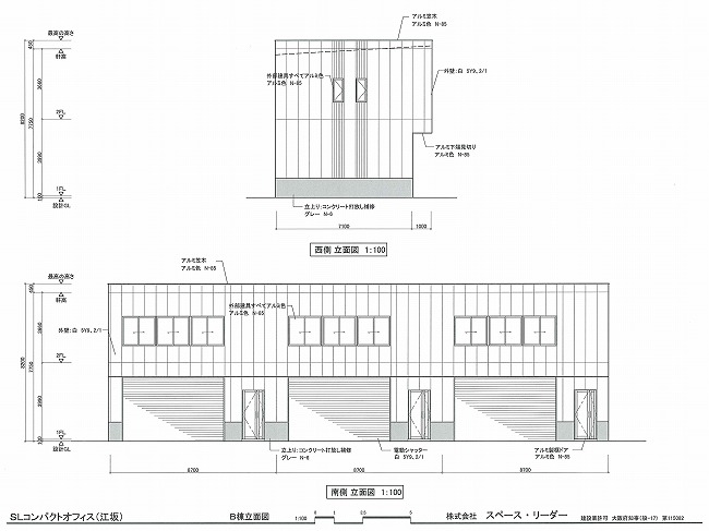
- 物件種目
- 貸倉庫事務所
- 住所
- 大阪府吹田市江坂町5-21-8
- 最寄駅
大阪メトロ御堂筋線「江坂」駅まで徒歩約11分
北大阪急行「緑地公園」駅まで徒歩約12分
阪急千里線「関大前」駅まで徒歩約14分
- 賃料
- 308,000円 (税込)
- 管理費/共益費
- 22,000円 (税込)
- 保証金
- ー
- 解約引
- ー
- 敷金
- 1,120,000円 (総額)
- 礼金
- 560,000円 (別途消費税)
- 敷地面積
- 653.00m²(約197.53坪)
- 各階面積
- 1階 61.77㎡(18.68坪)倉庫・駐車場
2階 70.47㎡(21.31坪)事務所
- 延床面積
- 132.24m²(約 40坪)
- 建物構造
- 鉄骨造・地上2階建
- 築年月
- 2007年8月(平成19年)
- 用途地域
- 近隣商業地域
- 賃貸対象
- 連棟の一区画(北棟B号)
- 駐車スペース
- 1台駐車可、前面は共有通路
- 接道状況
- 新御堂筋(側道)に面す
- 設備
- 電動シャッター(1階)、ウォシュレット付トイレ(各階)、空調(2階)、OAフロア(2階)
- 入居時期
- 相談
- 取引態様
- 貸主
- 備考
共益費に機械警備料を含む
天井高 1階 3990mm、2階 2700mm






