4面シャッター付き!南吹田の便利な現状渡し物件
A-681 吹田市南吹田3丁目 貸店舗・事務所・倉庫
- 吹田(その他)
- エリア
- 物件の広さ
- 賃料
- 事務所付き倉庫
- 1階店舗・事務所倉庫
- 30坪以上~70坪未満
- 10万円以上~30万円未満
担当者のおすすめポイント
JRおおさか東線「南吹田」駅より徒歩約6分。
4面シャッター付きで出入りしやすく、店舗・事務所・倉庫など多目的にご利用いただけます。
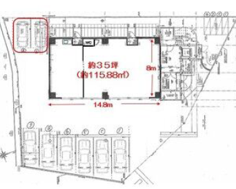
敷地内に軽自動車2台分の駐車スペースあり(敷地奥7・8番)。
トイレ・流し台・壁・分電盤は残置物扱い、現状渡しとなります。
飲食店不可。業種・使用方法ご相談ください。
- 登録日
- 2025年10月31日
- 次回更新予定日
- 随時
成約時には仲介手数料として賃料の1ヶ月分と消費税を頂戴致します。
掲載されている物件データが現況と異なる場合は現況を優先します。
- 物件種目
- 貸店舗事務所
- 住所
- 吹田市南吹田3丁目
- 最寄駅
- JRおおさか東線「南吹田」駅より徒歩約6分 
- 賃料
- 231,000円 (税込)
- 管理費/共益費
- 自主管理
- 保証金
- ー
- 解約引
- ー
- 敷金
- 210,000円 (総額)
- 礼金
- 420,000円 (別途消費税)
- 敷地面積
- 各階面積
- 延床面積
- 115.88m²(約 35.05坪)
- 建物構造
- 鉄筋コンクリート造・地上8階建
- 築年月
- 2008年(平成20年)
- 用途地域
- 第一種住居地域
- 賃貸対象
- 1階部分
- 駐車スペース
- 敷地内駐車場有/軽2台/敷地奥の赤囲い線内(7)(8)
- 接道状況
- 設備
- シャッター(4面)※トイレ・流し台・壁・分電盤・残置物扱い
- 入居時期
- 相談
- 取引態様
- 媒介
- 備考
- 現状渡し 
 飲食店不可
 火災保険加入要
 保証会社加入要
 除菌消臭代 19,800円
 鍵交換費用 16,500円
 半年間解約不可・総賃料の残月数の違約金発生










