【成約済】
A-73 南吹田3丁目貸倉庫
- 成約物件
 
担当者のおすすめポイント
- 登録日
 - 2018年5月17日
 
- 次回更新予定日
 - 2020年03月27日
 
成約時には仲介手数料として賃料の1ヶ月分と消費税を頂戴致します。
掲載されている物件データが現況と異なる場合は現況を優先します。
- 物件種目
 - 貸倉庫
 
- 住所
 - 大阪府吹田市南吹田3丁目
 
- 最寄駅
 阪急千里線「吹田」駅より徒歩約17分
大阪メトロ御堂筋線「江坂」駅より徒歩約18分
JRおおさか東線「南吹田」駅より徒歩約11分
- 賃料
 - 1,080,000円(税込)
 
- 管理費/共益費
 - 自主管理
 
- 保証金
 - ー
 
- 解約引
 - 相談
 
- 敷金
 - -
 
- 礼金
 - -
 
- 敷地面積
 
- 各階面積
 
- 延床面積
 - 532.10m²(約 160.96坪)
 
- 建物構造
 - 鉄骨造ALC版・地上2階建(一部、中2階有り)
 
- 築年月
 - -
 
- 用途地域
 
- 賃貸対象
 - 一棟貸
 
- 駐車スペース
 - 前面空地約6台駐車可(無料)
 
- 接道状況
 - 北側幅員6m、東側幅員6m
 
- 設備
 
- 入居時期
 - 相談
 
- 取引態様
 - 媒介
 
- 備考
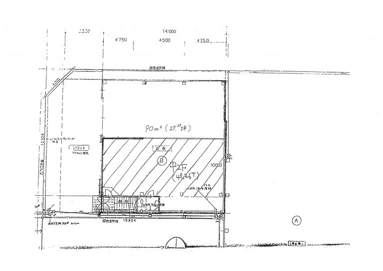
 1階 204.29㎡ 61.79坪
中2階 90.00㎡ 27.22坪
2階 237.81㎡ 71.93坪
合計 532.10㎡ 160.96坪
解約引 2,000,000円(別途消費税)
設備 トイレ、シャッター
階高 1F:5.00m




