【成約済】
AB-72 21センチュリービル(貸事務所)
- 成約物件
担当者のおすすめポイント
大阪メトロ御堂筋線「江坂」駅まで徒歩約2分
便利な立地の事務所ビルの募集です。
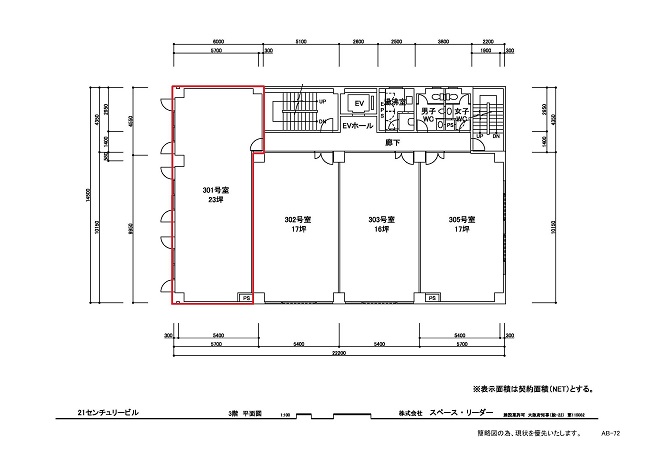
3階301号室と302号室のセット貸プランです。
延床面積40坪ございます。
2026年1月末退去予定です。
内覧ご希望の際は事前にご連絡くださいませ。
.
【㈱スペース・リーダーYouTubeページ】
弊社の企画・管理物件の紹介をしています。
建築風景から完成後の外観・内観までご覧いただけます。
- 登録日
- 2025年9月10日
- 次回更新予定日
- 随時
成約時には仲介手数料として賃料の1ヶ月分と消費税を頂戴致します。
掲載されている物件データが現況と異なる場合は現況を優先します。
- 物件種目
- 貸事務所
- 住所
- 大阪府吹田市豊津町10-26
- 最寄駅
大阪メトロ堂筋線「江坂」駅まで徒歩約2分
- 賃料
- 440,000円 (税込)
- 管理費/共益費
- 88,000円 (税込)
- 保証金
- ー
- 解約引
- ー
- 敷金
- 1,200,000円 (総額)
- 礼金
- 800,000円 (別途消費税)
- 敷地面積
- 各階面積
- 延床面積
- 132.23m²(約 39.99坪)
- 建物構造
- 鉄筋コンクリート造・地上5階建
- 築年月
- 1990年3月(平成2年)
- 用途地域
- 商業地域
- 賃貸対象
- 3階部分(301号室+302号室)
- 駐車スペース
- 無し(近隣確保)
- 接道状況
- 西側14m
- 設備
- エレベーター(1基)、ビル内光ケーブル引き込み済、各階男女別トイレ、各階給湯室、機械警備
- 入居時期
- 2026年2月
- 取引態様
- 貸主
- 備考
火災保険加入要
電気料金は子メーター検針により貸主より請求
2007年に外壁(御影石)リニューアル






