江坂駅徒歩5分の貸事務所
AB-74 TCSビル(貸事務所)
- 吹田(江坂駅周辺)
- エリア
- 物件の広さ
- 賃料
- 貸事務所
- 30坪以上~70坪未満
- 30万円以上~50万円未満
担当者のおすすめポイント
人気の江坂地域の新耐震基準の事務所ビルに空きが出ます。
大阪メトロ御堂筋線「江坂」駅までは徒歩約5分、
新御堂筋へのアクセスもしやすい便利な立地です。
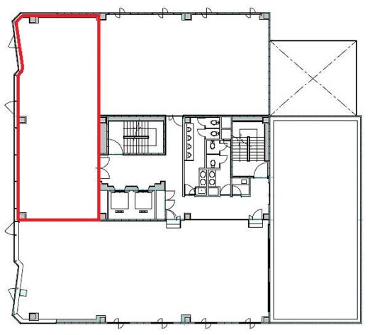
6階36坪で2024年12月以降に入居可能です。
ビル内の駐車場については最新の状況をお問合せください。
- 登録日
- 2025年6月4日
- 次回更新予定日
- 随時
成約時には仲介手数料として賃料の1ヶ月分と消費税を頂戴致します。
掲載されている物件データが現況と異なる場合は現況を優先します。
- 物件種目
- 貸事務所
- 住所
- 大阪府吹田市江坂町1丁目
- 最寄駅
大阪メトロ御堂筋線「江坂」駅まで徒歩約5分
- 賃料
- 396,000円 (税込)
- 管理費/共益費
- 賃料に含む
- 保証金
- ー
- 解約引
- 2年未満の解約で20%引
- 敷金
- 3,600,000円 (総額)
- 礼金
- ー
- 敷地面積
- 各階面積
- 延床面積
- 119.01m²(約 36坪)
- 建物構造
- 鉄骨造・地下1階 地上6階建
- 築年月
- 1990年5月(平成2年)
- 用途地域
- 商業地域
- 賃貸対象
- 6階部分(6A-2)
- 駐車スペース
- 立体駐車場
- 接道状況
- 設備
- 個別空調、OAフロア(500mm)、エレベーター(2基)、機械警備
- 入居時期
- 即日
- 取引態様
- 媒介
- 備考
24時間使用可
土日祝使用可
天井高 約2,530mm
エントランス開放時間
7:30~20:00 (日祝閉鎖)
電気使用料
35円/Kwh(変動有り)


