【成約済】
B-1104 豊中市勝部3丁目 貸倉庫兼事務所
- 成約物件
担当者のおすすめポイント
- 登録日
- 2020年3月16日
- 次回更新予定日
- 2020年03月30日
成約時には仲介手数料として賃料の1ヶ月分と消費税を頂戴致します。
掲載されている物件データが現況と異なる場合は現況を優先します。
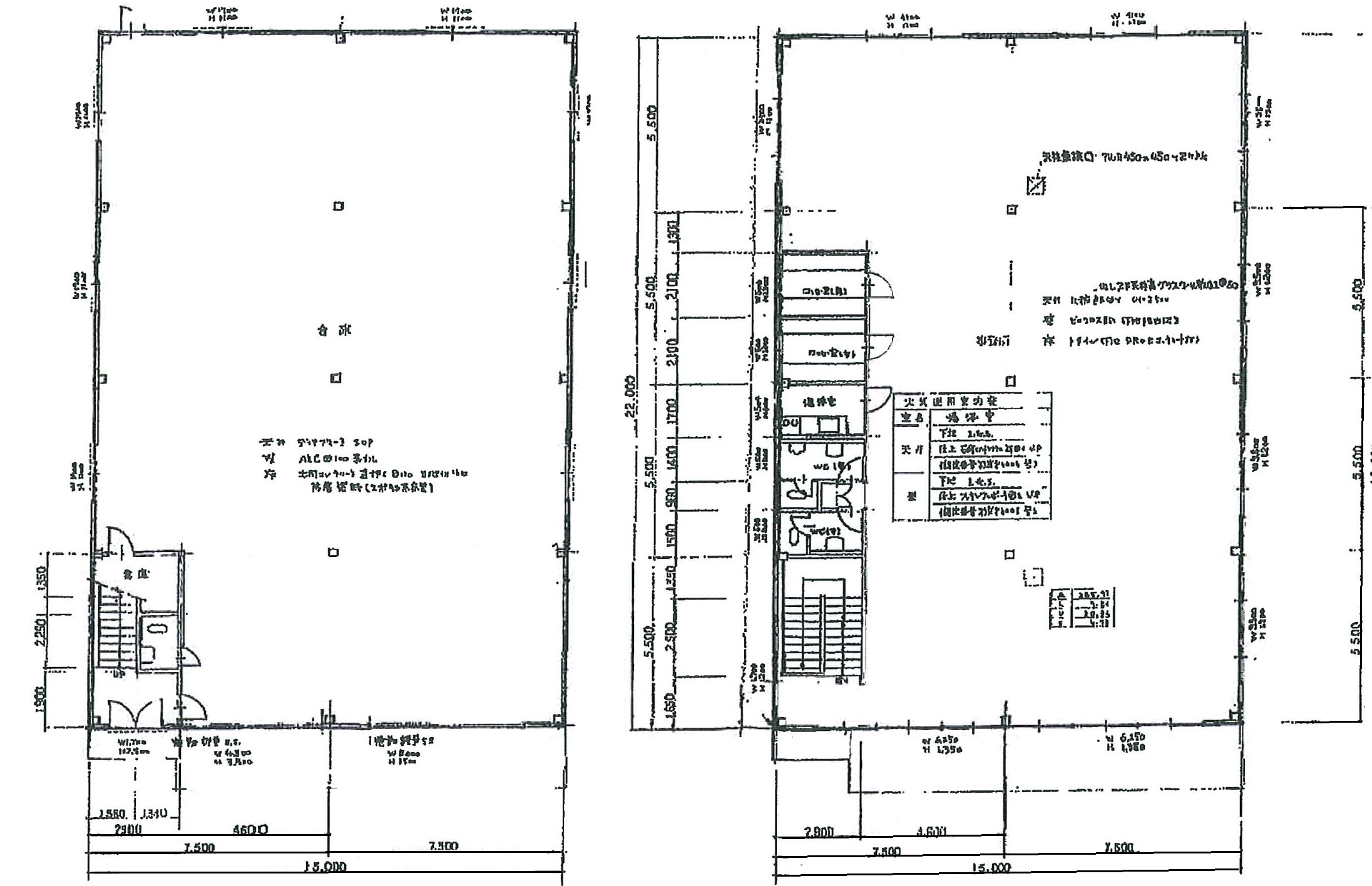
- 物件種目
- 貸倉庫事務所
- 住所
- 大阪府豊中市勝部3丁目
- 最寄駅
阪急宝塚線「岡町」駅より徒歩約13分
- 賃料
- 1,100,000円 (税込)
- 管理費/共益費
- 自主管理
- 保証金
- 6,000,000円 (総額)
- 解約引
- 2,000,000円 (別途消費税)
- 敷金
- ー
- 礼金
- ー
- 敷地面積
- 各階面積
- 1階 330.00㎡(99.82坪)倉庫
2階 330.00㎡(99.82坪)事務所
- 延床面積
- 660.00m²(約 199.65坪)
- 建物構造
- 鉄骨造・地上2階建
- 築年月
- 1985年5月(昭和60年)
- 用途地域
- 準工業地域
- 賃貸対象
- 一棟貸
- 駐車スペース
- 前面空地有り(無料)
- 接道状況
- 設備
- 入居時期
- 相談
- 取引態様
- 媒介
- 備考
天井高(梁下)1階3.5m



