【成約済】
B-1424 走井2丁目貸工場
- 成約物件
担当者のおすすめポイント
- 登録日
- 2019年3月29日
- 次回更新予定日
- 2020年03月27日
成約時には仲介手数料として賃料の1ヶ月分と消費税を頂戴致します。
掲載されている物件データが現況と異なる場合は現況を優先します。
- 物件種目
- 貸工場
- 住所
- 大阪府豊中市走井2丁目
- 最寄駅
阪急宝塚線・大阪モノレール「蛍池」駅より徒歩約20分
- 賃料
- 324,000円(税込)
- 管理費/共益費
- 自主管理
- 保証金
- ー
- 解約引
- 相談
- 敷金
- ―
- 礼金
- 1,000,000円(別途消費税)
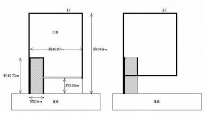
- 敷地面積
- 各階面積
- 延床面積
- 305.90m²(約 92.53坪)
- 建物構造
- 鉄骨造・地上2階建
- 築年月
- 1975年2月(昭和50年)
- 用途地域
- 賃貸対象
- 連棟の一区画
- 駐車スペース
- 前面空地有り(無料)
- 接道状況
- 設備
- 入居時期
- 相談
- 取引態様
- 媒介
- 備考
1階 152.95㎡ 46.26坪
2階 152.95㎡ 46.26坪
合計 305.90㎡ 92.53坪
自動車工場跡


