【成約済】
B-1851 豊中市熊野町2丁目 貸店舗事務所
- 成約物件
担当者のおすすめポイント
豊中市熊野町の府道2号線沿いにある一棟貸店舗事務所です。
阪急バス「熊野町」停のすぐ近くで、
周辺は住宅も多く、また様々な店舗も並ぶ賑やかな立地です。
交差点の角地にある視認性の良い物件で、
以前は都市銀行が入居されていました。
スケルトンでの引渡しとなりますので、
ご使用方法等ご相談ください。
- 登録日
- 2025年3月12日
- 次回更新予定日
- 随時
成約時には仲介手数料として賃料の1ヶ月分と消費税を頂戴致します。
掲載されている物件データが現況と異なる場合は現況を優先します。
- 物件種目
- 貸店舗事務所
- 住所
- 大阪府豊中市熊野町2丁目
- 最寄駅
北大阪急行「桃山台」駅まで徒歩約22分
- 賃料
- 550,000円 (税込)
- 管理費/共益費
- 自主管理
- 保証金
- 1,500,000円 (総額)
- 解約引
- 0円 (別途消費税)
- 敷金
- ー
- 礼金
- ー
- 敷地面積
- 121.36m²(約36.71坪)
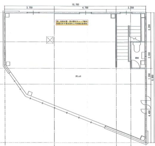
- 各階面積
- 1階 83.02㎡(25.11坪)
2階 81.22㎡(24.56坪)
- 延床面積
- 164.24m²(約 49.68坪)
- 建物構造
- 鉄骨造・地上2階建
- 築年月
- 1989年11月(平成元年)
- 用途地域
- 第二種中高層住居専用地域
- 賃貸対象
- 一棟貸
- 駐車スペース
- 無し
- 接道状況
- 南側幅員約10m(公道)、西側幅員約4.5m(公道)
- 設備
- 入居時期
- 相談
- 取引態様
- 媒介
- 備考
スケルトン
諸条件相談可



