千里中央近くの新築テラスハウス!駐車場付き・ペット飼育可
B-1922 アルモニー千里(2号室)
- 豊中周辺
- エリア
- 物件の広さ
- 賃料
- 当社管理物件
- 30坪以上~70坪未満
- 10万円以上~30万円未満
担当者のおすすめポイント
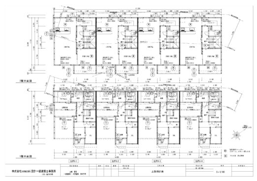
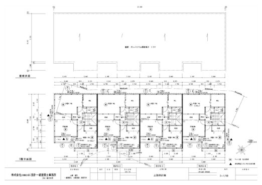
2026年8月竣工予定の新築テラスハウスです。
3階建の駐車場付き物件です。
再開発も期待される千里中央駅徒歩圏内、
ファミリーに人気のエリアで4区画の募集です。
延床184.84㎡の4LDKで
土間収納やランドリールーム、パントリーもある
余裕のある間取りとなっております。
ペットも飼育可能(犬・猫2匹迄・大型犬も可)で
充実の北摂ライフをお送りいただけます。
事務所やSOHOでのご利用もご相談ください。
.
.
.
【㈱スペース・リーダーYouTubeページ】
弊社の企画・管理物件の紹介をしています。
建築風景から完成後の外観・内観までご覧いただけます。
- 登録日
- 2026年4月17日
- 次回更新予定日
- 随時
成約時には仲介手数料として賃料の1ヶ月分と消費税を頂戴致します。
掲載されている物件データが現況と異なる場合は現況を優先します。
- 物件種目
- 貸テラスハウス
- 住所
- 豊中市上新田1-58-1(地番)
- 最寄駅
北大阪急行「桃山台」駅まで徒歩約13分
大阪モノレール・北大阪急行「千里中央」駅まで徒歩約16分
- 賃料
- 275,000円
- 管理費/共益費
- 3,000円
- 保証金
- ー
- 解約引
- ー
- 敷金
- 賃料の1ヶ月分
- 礼金
- 賃料の2ヶ月分
- 敷地面積
- 各階面積
- 延床面積
- 184.84m²(約 55.91坪)
- 建物構造
- 木造・地上3階建
- 築年月
- 2026年8月(令和8年)
- 用途地域
- 第二種中高層住居専用地域
- 賃貸対象
- 連棟の一区画(2号室)
- 駐車スペース
- 1階ガレージ部分駐車可(無料・車種要確認)
- 接道状況
- 設備
- シャッター、トイレ(各階)、洗面、風呂、ランドリールーム、キッチン(3口)、パントリー、収納、ウォークインクローゼット、バルコニー、浴室暖房乾燥機、インターネット無料
- 入居時期
- 2026年9月中旬
- 取引態様
- 代理
- 備考
ペット飼育可
・犬・猫合計2匹まで(大型犬も可)
・飼育の場合、賃料3,000円UP+敷金1ヶ月分UP
火災保険加入要
保証会社加入要
賃料口座振替手数料330円
短期解約違約金(1年未満解約:賃料+共益費の1ヶ月分)
マップ
お問い合わせ
その他おすすめ物件
-
B-1922 アルモニー千里(4号室)
- 賃料
- 280,000円
- 延床面積
- 184.84m²(約55.91坪)
- アクセス
-
北大阪急行「桃山台」駅まで徒歩約13分
大阪モノレール・北大阪急行「千…
-
B-1922 アルモニー千里(3号室)
- 賃料
- 275,000円
- 延床面積
- 184.84m²(約55.91坪)
- アクセス
-
北大阪急行「桃山台」駅まで徒歩約13分
大阪モノレール・北大阪急行「千…
-
B-1922 アルモニー千里(1号室)
- 賃料
- 280,000円
- 延床面積
- 184.84m²(約55.91坪)
- アクセス
-
北大阪急行「桃山台」駅まで徒歩約13分
大阪モノレール・北大阪急行「千…


