ロードサイド物件♪
B-259 豊中市走井3丁目 一棟貸事務所
- 豊中周辺
- エリア
- 物件の広さ
- 賃料
- 事務所付き倉庫
- 一棟貸ビル
- 多層階事務所付き倉庫
- 前面空地付き倉庫
- 150坪以上~300坪未満
- 70万円以上~100万円未満
担当者のおすすめポイント
豊中市走井エリアにて、希少な一棟貸し事務所の募集です。
延べ約196.92坪のゆとりある規模感で、事務所・営業所・倉庫併設など、多様な用途に対応可能。部署ごとのフロア分けや、バックオフィス機能を含めた拠点としてもご活用いただけます。
1階ピロティ部分には約9台分の駐車スペースを確保しており、社用車の利用や来客対応が多い業種にも適した条件です。車でのアクセスを重視される企業様には特におすすめのポイントとなっております。
一棟貸しならではの独立性と自由度の高さも魅力で、レイアウトや運用面において柔軟な対応が可能です。まとまった面積と駐車場を確保できる物件は限られておりますので、ぜひこの機会にご検討ください。
- 登録日
- 2026年4月8日
- 次回更新予定日
- 随時
成約時には仲介手数料として賃料の1ヶ月分と消費税を頂戴致します。
掲載されている物件データが現況と異なる場合は現況を優先します。
- 物件種目
- 一棟貸事務所
- 住所
- 大阪府豊中市走井3丁目
- 最寄駅
阪急宝塚線、大阪モノレール「蛍池」駅まで徒歩約15分
阪急宝塚線「豊中」駅まで徒歩約16分
阪神高速11号池田線「豊中北」まで約0.1㎞
- 賃料
- 715,000円 (税込)
- 管理費/共益費
- 33,000円 (税込)
- 保証金
- ー
- 解約引
- ー
- 敷金
- 3,900,000円 (総額)
- 礼金
- 1,300,000円 (別途消費税)
- 敷地面積
- 各階面積
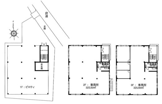
- 1階 ピロティ
2階 325.50㎡(98.46坪)事務所
3階 325.50㎡(98.46坪)事務所
- 延床面積
- 651.00m²(約 196.92坪)
- 建物構造
- 鉄骨造・地上3階建
- 築年月
- 1990年11月(平成2年)
- 用途地域
- 準工業地域
- 賃貸対象
- 一棟貸
- 駐車スペース
- 前面空地約9台駐車可(無料)
- 接道状況
- 設備
- トイレ(2ヶ所)、ミニキッチン、2階壁掛エアコン(残置物)
- 入居時期
- 即日
- 取引態様
- 媒介
- 備考
定期賃貸借契約(期間:10年)※再契約可
検査済証無し鍵交換代15,000円
火災保険加入要
保証会社加入要


