駐車2台可の3階建倉庫事務所
B-324 豊中市三国1丁目 貸倉庫・事務所
- 豊中周辺
- エリア
- 物件の広さ
- 賃料
- 事務所付き倉庫
- 多層階事務所付き倉庫
- 前面空地付き倉庫
- 30坪未満
- 10万円以上~30万円未満
担当者のおすすめポイント
大阪市内、北摂、神戸など各方面へアクセスしやすい立地の貸倉庫事務所です。
連棟の端区画で専用駐車場2台分付きです。
1階はシャッター付きで倉庫や作業スペースとして、
2,3階は事務所としてご使用いただけます。
専用トイレやキッチンも完備です。
店舗としてのご使用も可能です。
業種などご相談ください。
- 登録日
- 2026年4月10日
- 次回更新予定日
- 随時
成約時には仲介手数料として賃料の1ヶ月分と消費税を頂戴致します。
掲載されている物件データが現況と異なる場合は現況を優先します。
- 物件種目
- 貸倉庫事務所
- 住所
- 大阪府豊中市三国1-3-20
- 最寄駅
阪急宝塚線「三国」駅まで徒歩約9分
- 賃料
- 253,000円 (税込)
- 管理費/共益費
- 自主管理
- 保証金
- ー
- 解約引
- ー
- 敷金
- ー
- 礼金
- 460,000円 (別途消費税)
- 敷地面積
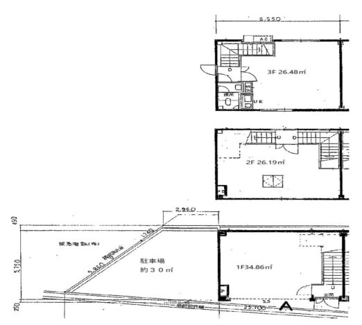
- 各階面積
- 1階 34.86㎡(10.54坪)
2階 26.19㎡(7.92坪)
3階 26.48㎡(8.01坪)
- 延床面積
- 87.53m²(約 26.47坪)
- 建物構造
- 鉄骨造・地上3階建
- 築年月
- 1993年2月(平成5年)
- 用途地域
- 準工業地域
- 賃貸対象
- 連棟の一区画(A号)
- 駐車スペース
- 前面空地約2台駐車可(無料)
- 接道状況
- 設備
- トイレ、ミニキッチン、シャッター
- 入居時期
- 2026年6月
- 取引態様
- 媒介
- 備考
店舗使用可
火災保険加入要
保証会社加入要


