【成約済】
D-1006 茨木市東太田3丁目 貸倉庫事務所
- 成約物件
担当者のおすすめポイント
- 登録日
- 2022年12月23日
- 次回更新予定日
- 随時
成約時には仲介手数料として賃料の1ヶ月分と消費税を頂戴致します。
掲載されている物件データが現況と異なる場合は現況を優先します。
- 物件種目
- 貸倉庫事務所
- 住所
- 大阪府茨木市東太田3丁目
- 最寄駅
JR京都線「摂津富田」駅まで徒歩約17分
阪急京都線「富田」駅まで徒歩約18分
名神高速道路「茨木」ICまで約2.3㎞
- 賃料
- 1,000,000円 (税込)
- 管理費/共益費
- 自主管理
- 保証金
- ー
- 解約引
- ー
- 敷金
- ー
- 礼金
- 3,000,000円 (別途消費税)
- 敷地面積
- 各階面積
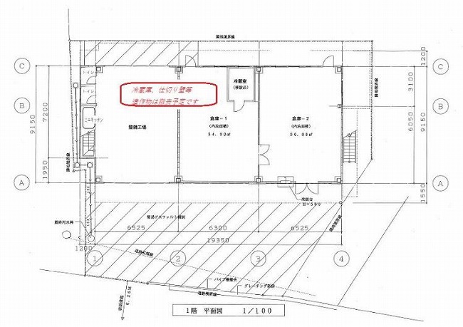
- 1階 185.69㎡(56.17坪)
2階 210.35㎡(63.63坪)
3階 210.35㎡(63.63坪)
- 延床面積
- 606.39m²(約 183.43坪)
- 建物構造
- 鉄骨造・地上3階建
- 築年月
- 1993年4月(平成5年)
- 用途地域
- 準工業地域
- 賃貸対象
- 一棟貸
- 駐車スペース
- 前面空地有り(無料)
- 接道状況
- 設備
- 入居時期
- 相談
- 取引態様
- 媒介
- 備考
2020年 屋上防水、外壁改修工事完了
1階:シャッター内造作壁+ドア、造作天井、エアコン → 残地、撤去 相談可
2階、3階:間仕切り壁 → 撤去予定
火災保険加入要
保証会社加入要






