名神茨木IC近くの新築倉庫事務所
D-1890 IBARAKI BASE WEST
- 摂津・茨木・池田・箕面周辺
- 30坪以上~70坪未満
- エリア
- 物件の広さ
- 賃料
- 事務所付き倉庫
- 多層階事務所付き倉庫
- 前面空地付き倉庫
- 当社管理物件
- 30万円以上~50万円未満
担当者のおすすめポイント
名神高速道路「茨木」IC近くに倉庫事務所が誕生しました。
WEST4区画とEAST3区画の2棟で外観もお洒落な物件です。
1階倉庫、2階事務所の人気タイプで、各区画前面空地に3台の駐車も可能です。
別途敷地内に月極駐車場も設置予定です。
高速インターや国道171号線にも出やすく、各方面へのアクセス良好な立地です。
- 登録日
- 2026年3月12日
- 次回更新予定日
- 随時
成約時には仲介手数料として賃料の1ヶ月分と消費税を頂戴致します。
掲載されている物件データが現況と異なる場合は現況を優先します。
- 物件種目
- 貸倉庫事務所
- 住所
- 大阪府茨木市上郡2丁目
- 最寄駅
JR東海道本線「茨木」駅までバス乗車約16分
(阪急バス「中河原」停まで徒歩約6分)
名神高速道路「茨木」ICまで約1.4㎞
- 賃料
- 356,400円 (税込)
- 管理費/共益費
- 自主管理
- 保証金
- ー
- 解約引
- ー
- 敷金
- 648,000円 (総額)
- 礼金
- 648,000円 (別途消費税)
- 敷地面積
- 1037.06m²(約313.71坪)
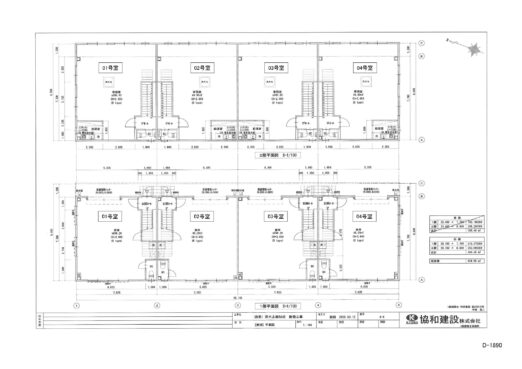
- 各階面積
- 1階 54.09㎡(16.36坪)
2階 62.52㎡(18.91坪)
- 延床面積
- 116.61m²(約 35.27坪)
- 建物構造
- 鉄骨造・地上2階建
- 築年月
- 2025年11月(令和7年)
- 用途地域
- 準工業地域
- 賃貸対象
- 連棟の一区画(全4区画)
- 駐車スペース
- 各区画 前面空地3台駐車可(普通車2台+軽自動車1台)(無料)
- 接道状況
- 設備
- 電動シャッター、トイレ(2ヶ所)、ミニキッチン(IH)、エアコン(2階)
- 入居時期
- 即日
- 取引態様
- 代理
- 備考
階高 1階:3,850㎜ 2階:3,200㎜
火災保険加入要
保証会社加入要
マップ
お問い合わせ
その他おすすめ物件
-
D-1889 IBARAKI BASE EAST
- 賃料
- 396,000円 (税込)
- 延床面積
- 129.48m²(約39.16坪)
- アクセス
-
JR東海道本線「茨木」駅までバス乗車約16分
(阪急バス「中河原」停ま…
-
F-1913 桜井3丁目一棟貸店舗事務所
- 賃料
- 440,000円 (税込)
- 延床面積
- 197.87m²(約59.85坪)
- アクセス
- 阪急箕面線「桜井」駅まで徒歩約6分
-
F-1171-2 箕面市船場西3丁目 貸店舗事務所
- 賃料
- 418,000円 (税込)
- 延床面積
- 141.90m²(約42.92坪)
- アクセス
-
北大阪急行「箕面船場阪大前」駅まで徒歩約5分
北大阪急行・大阪モノレー…







