308坪の大型倉庫!門真南駅徒歩16分の希少サイズ
I-212 門真市桑才 貸倉庫
- 東大阪・守口・門真周辺
- エリア
- 物件の広さ
- 賃料
- 事務所付き倉庫
- 300坪以上~500坪未満
- 150万円以上
担当者のおすすめポイント
大阪メトロ長堀鶴見緑地線「門真南」駅まで徒歩約16分。
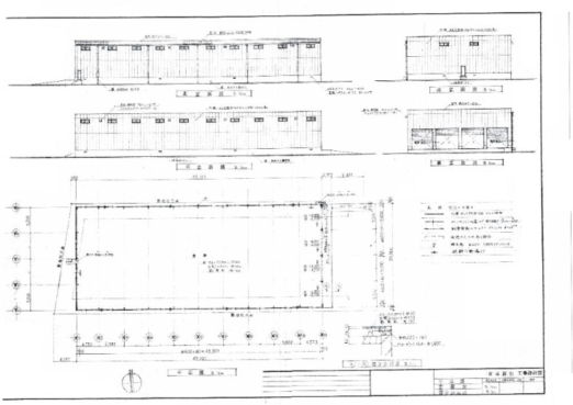
延べ床面積1215.10㎡(約308坪)を誇る、大型サイズの倉庫物件です。
十分な床面積が確保されており、
物流拠点・商品保管・作業スペースなど、幅広い用途に対応可能。
大型案件をお探しの企業様にもおすすめの規模感です。
門真エリアでこの規模の倉庫は希少のため、ぜひお早めにご検討ください。
- 登録日
- 2025年11月29日
- 次回更新予定日
- 随時
成約時には仲介手数料として賃料の1ヶ月分と消費税を頂戴致します。
掲載されている物件データが現況と異なる場合は現況を優先します。
- 物件種目
- 貸倉庫
- 住所
- 門真市桑才新町26-3
- 最寄駅
大阪メトロ長堀鶴見緑地線「門真南」駅まで徒歩約16分
- 賃料
- 1,980,000円 (税込)
- 管理費/共益費
- 自主管理
- 保証金
- ー
- 解約引
- ー
- 敷金
- 7,200,000円 (総額)
- 礼金
- 3,600,000円 (別途消費税)
- 敷地面積
- 1863.87m²(約563.82坪)
- 各階面積
- 1階 1,021.28 ㎡ 308.93坪倉庫
1階 96.91 ㎡ 29.31 坪 事務所
2階 96.91 ㎡ 29.31 坪 事務所
※2階 別途 増築部分 10坪
- 延床面積
- 1215.10m²(約 367.56坪)
- 建物構造
- 鉄骨造亜鉛メッキ鋼板葺・平屋建倉庫・地上2階建事務所
- 築年月
- 1984年8月(昭和59年)
- 用途地域
- 準工業地域
- 賃貸対象
- 駐車スペース
- 前面空地有り(無料)
- 接道状況
- 設備
- トイレ、電動シャッター
- 入居時期
- 相談
- 取引態様
- 媒介
- 備考
天井高:6.5m
事務所内の空調設備は残置物





