【成約済】
J-378 東大阪市下六万寺町2丁目 貸倉庫
- 成約物件
担当者のおすすめポイント
近鉄奈良線「瓢箪山」駅より徒歩約15分の平屋建の貸倉庫物件です。
約165坪と広い平屋建倉庫になるので、使い勝手良い物件です。
前面空地付きなので、荷積み荷下ろし作業もしやすく、便利です。
大型道路沿いに位置していますので、物流関係やトラックの出入りが多い業種にはとにかくオススメできるポイントです。
天井高も高い為、荷物を積み上げて保管される場合にもオススメです。
何より駅から近いのがメリットで、従業員様の通勤にも安心できます。
2019年12月末に退去予定となります。
東大阪エリアは倉庫物件が大変少なくなっていますので、お問合せはお早めに!!
- 登録日
- 2019年10月15日
- 次回更新予定日
- 2020年04月16日
成約時には仲介手数料として賃料の1ヶ月分と消費税を頂戴致します。
掲載されている物件データが現況と異なる場合は現況を優先します。
- 物件種目
- 貸倉庫
- 住所
- 大阪府東大阪市下六万寺町2丁目
- 最寄駅
近鉄奈良線「瓢箪山」駅より徒歩約15分
- 賃料
- 1,650,000円 (税込)
- 管理費/共益費
- 自主管理
- 保証金
- 15,000,000円 (総額)
- 解約引
- 保証金の30%
- 敷金
- ー
- 礼金
- ー
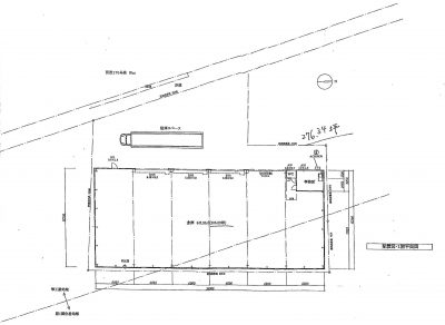
- 敷地面積
- 913.52m²(約276.33坪)
- 各階面積
- 延床面積
- 547.20m²(約 165.52坪)
- 建物構造
- 鉄骨造合金メッキ銅板葺・平屋建
- 築年月
- 2008年5月(平成20年)
- 用途地域
- 準工業地域、第一種住居地域
- 賃貸対象
- 一棟貸
- 駐車スペース
- 前面空地有り(無料)
- 接道状況
- 外環状線沿い
- 設備
- 入居時期
- 相談
- 取引態様
- 媒介
- 備考
実費負担 電気・水道料金、メンテナンス費等
検査済証有り
引渡し条件相談
契約期間 満10年以上 ※以後1年毎の自動更新
返還保証金は契約月数で均等分割した金額を毎月賃料よりリースバック
大型車荷捌き可




