【成約済】
J-395 東大阪市川俣1丁目 貸倉庫事務所
- 成約物件
担当者のおすすめポイント
- 登録日
- 2020年4月16日
- 次回更新予定日
- 2020年04月29日
成約時には仲介手数料として賃料の1ヶ月分と消費税を頂戴致します。
掲載されている物件データが現況と異なる場合は現況を優先します。
- 物件種目
- 貸倉庫事務所
- 住所
- 大阪府東大阪市川俣1丁目
- 最寄駅
大阪メトロ中央線「高井田」駅より徒歩約5分
JRおおさか東線「高井田中央」駅より徒歩約5分
阪神高速13号東大阪線「高井田」より約1.1km
- 賃料
- 495,000円 (税込)
- 管理費/共益費
- 自主管理
- 保証金
- 2,700,000円 (総額)
- 解約引
- 900,000円 (別途消費税)
- 敷金
- ー
- 礼金
- ー
- 敷地面積
- 269.48m²(約81.51坪)
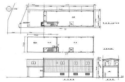
- 各階面積
- 1階 161.46㎡(48.84坪)
2階 214.42㎡(64.86坪)
- 延床面積
- 375.88m²(約 113.7坪)
- 建物構造
- 鉄骨造・地上2階建
- 築年月
- 1994年5月(平成6年)
- 用途地域
- 準工業地域
- 賃貸対象
- 一棟貸
- 駐車スペース
- 前面空地有り(無料)
- 接道状況
- 設備
- 入居時期
- 相談
- 取引態様
- 媒介
- 備考









