【成約済】
J-428 東大阪市川田4丁目 貸店舗事務所
- 成約物件
担当者のおすすめポイント
- 登録日
- 2021年6月8日
- 次回更新予定日
- 随時
成約時には仲介手数料として賃料の1ヶ月分と消費税を頂戴致します。
掲載されている物件データが現況と異なる場合は現況を優先します。
- 物件種目
- 貸店舗事務所
- 住所
- 大阪府東大阪市川田4丁目
- 最寄駅
近鉄けいはんな線「吉田」駅より徒歩約13分
第二京阪道路「水走」より約1.1㎞
- 賃料
- 275,000円 (税込)
- 管理費/共益費
- 自主管理
- 保証金
- ー
- 解約引
- ー
- 敷金
- ー
- 礼金
- 500,000円 (別途消費税)
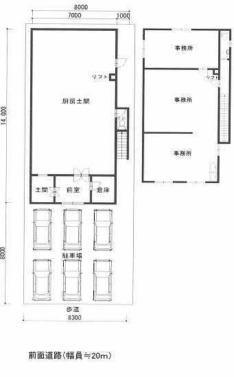
- 敷地面積
- 各階面積
- 1階 99.17㎡(30.00坪)
2階 99.17㎡(30.00坪)
- 延床面積
- 198.34m²(約 59.99坪)
- 建物構造
- 鉄骨造・地上2階建
- 築年月
- 用途地域
- 工業地域
- 賃貸対象
- 連棟の一区画
- 駐車スペース
- 前面空地約6台駐車可(無料)
- 接道状況
- 南側幅員約20m
- 設備
- トイレ、【残置物】リフト、正面外部倉庫
- 入居時期
- 相談
- 取引態様
- 媒介
- 備考
現況 1階:厨房 2階:事務所
外装フリーデザイン可
飲食店可









