【成約済】
N-164 柏原市円明町 貸工場
- 成約物件
担当者のおすすめポイント
- 登録日
- 2020年7月17日
- 次回更新予定日
- 随時
成約時には仲介手数料として賃料の1ヶ月分と消費税を頂戴致します。
掲載されている物件データが現況と異なる場合は現況を優先します。
- 物件種目
- 貸工場
- 住所
- 大阪府柏原市円明町
- 最寄駅
近鉄南大阪線「駒ヶ谷」駅より徒歩約13分
西名阪道路「柏原」ICより約2.6㎞
- 賃料
- 相談
- 管理費/共益費
- 相談
- 保証金
- ー
- 解約引
- ー
- 敷金
- 賃料の4ヶ月分(総額)
- 礼金
- 賃料の2ヶ月分(別途消費税)
- 敷地面積
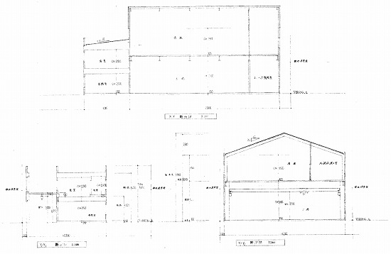
- 1437.64m²(約434.88坪)
- 各階面積
- 第1工場
1階 371.00㎡(112.22坪)
中2階 61.40㎡(18.57坪)
2階 320.00㎡(96.80坪)
第2工場
1階 173.46㎡(52.47坪)
別棟倉庫
1階 60.90㎡(18.42坪)
- 延床面積
- 986.76m²(約 298.49坪)
- 建物構造
- ①鉄骨造ALC版・地上2階建(中2階有)
②鉄骨造スレート葺・平屋建
- 築年月
- ①1979年12月(昭和54年)
②1983年2月(昭和58年)
- 用途地域
- 工業専用地域
- 賃貸対象
- 3棟一括貸
- 駐車スペース
- 前面空地10~20台駐車可(無料)
- 接道状況
- 設備
- 荷物用EV(240㎏、幅:147㎝、奥行:120㎝、高さ160㎝)、クレーン(第1工場 1階:2t 2階:150㎏、0.5t×2基 第2工場 2t)、残置物:空調設備、フォークリフト
- 入居時期
- 相談
- 取引態様
- 媒介
- 備考
天井高
・第1工場 1階:5.1m 中2階:2.5m 2階:3.5m
・第2工場 6.5m
・別棟倉庫 4m
契約期間 5年以上(応相談)









