新大阪駅近くのマンション1階路面店
O-519 大阪市東淀川区東中島1丁目 貸店舗・事務所
- 大阪市内
- エリア
- 物件の広さ
- 賃料
- 1階店舗・事務所倉庫
- 30坪以上~70坪未満
- 30万円以上~50万円未満
担当者のおすすめポイント
新大阪駅近くのマンション1階路面店です。
幹線道路に面した視認性の良い物件です。
現況スケルトンですが、自動ドアとトイレはございます。
裏口からの出入りも可能です。
飲食店は不可ですが、事務所使用など業種はご相談ください。
また内装についてもご相談承ります。
内覧をご希望の際は事前にご連絡くださいませ。
- 登録日
- 2025年12月25日
- 次回更新予定日
- 随時
成約時には仲介手数料として賃料の1ヶ月分と消費税を頂戴致します。
掲載されている物件データが現況と異なる場合は現況を優先します。
- 物件種目
- 貸店舗・事務所
- 住所
- 大阪市東淀川区東中島1丁目
- 最寄駅
JR京都線・大阪メトロ御堂筋線「新大阪」駅まで徒歩約7分
阪急京都線「崇禅寺」駅まで徒歩約9分
- 賃料
- 336,600円 (税込)
- 管理費/共益費
- 自主管理
- 保証金
- 918,000円 (総額)
- 解約引
- ー
- 敷金
- ー
- 礼金
- 612,000円 (別途消費税)
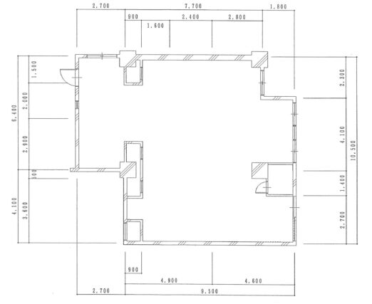
- 敷地面積
- 370.51m²(約112.07坪)
- 各階面積
- 1階 112.89㎡(34.14坪)
- 延床面積
- 112.89m²(約 34.14坪)
- 建物構造
- 鉄骨鉄筋コンクリート造 陸屋根・地上12階建
- 築年月
- 1998年7月(平成10年)
- 用途地域
- 商業地域
- 賃貸対象
- 1階部分
- 駐車スペース
- 月額25,000円(税込)/台
- 接道状況
- 設備
- 自動ドア、トイレ(1ヶ所)
- 入居時期
- 相談
- 取引態様
- 媒介
- 備考
スケルトン
飲食店不可
内装相談可
保証会社加入要









