新大阪駅徒歩圏内の倉庫兼事務所♪
O-62 大阪市東淀川区東中島3丁目 一棟貸倉庫事務所
- 大阪市内
- エリア
- 物件の広さ
- 賃料
- 事務所付き倉庫
- 一棟貸ビル
- 多層階事務所付き倉庫
- 前面空地付き倉庫
- 150坪以上~300坪未満
- 150万円以上
担当者のおすすめポイント
一棟貸の倉庫事務所物件です!
「新大阪」駅、阪急京都線「崇禅寺」駅まで徒歩約7分と徒歩でのアクセスも抜群です。
地上3階建で、前面の空地に自動車4台分駐車可能なスペースがございます。
前面道路も広く、便利な立地となっていますので、事務所の移転や拡張を検討中の事業者様には特にオススメできる物件です。
- 登録日
- 2026年1月7日
- 次回更新予定日
- 随時
成約時には仲介手数料として賃料の1ヶ月分と消費税を頂戴致します。
掲載されている物件データが現況と異なる場合は現況を優先します。
- 物件種目
- 一棟貸倉庫事務所
- 住所
- 大阪市東淀川区東中島3丁目
- 最寄駅
JR京都線、大阪メトロ御堂筋線「新大阪」駅まで徒歩約7分
阪急京都線「崇禅寺」駅まで徒歩約7分
- 賃料
- 1,650,000円(税込)
- 管理費/共益費
- 自主管理
- 保証金
- ー
- 解約引
- スライド式
- 敷金
- 15,000,000円(総額)
- 礼金
- ―
- 敷地面積
- 497.31m²(約150.43坪)
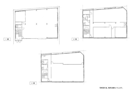
- 各階面積
- 1階 250.76㎡ 75.85坪
2階 236.41㎡ 71.51坪
3階 236.41㎡ 71.51坪
合計 723.58㎡ 218.88坪
- 延床面積
- 723.58m²(約 218.88坪)
- 建物構造
- 鉄骨造・地上3階建
- 築年月
- 1981年6月(昭和56年)
- 用途地域
- 賃貸対象
- 一棟貸
- 駐車スペース
- 前面空地約4台駐車可(無料)
- 接道状況
- 設備
- 入居時期
- 相談
- 取引態様
- 媒介
- 備考
検査済証有り
2020年6月改修耐震工事済
契約期間 普通借家契約15年(以後、3年毎の自動更新)



