【成約済】
O-641 大阪市淀川区十三本町1丁目 貸店舗
- 成約物件
担当者のおすすめポイント
- 登録日
- 2021年3月3日
- 次回更新予定日
- 随時
成約時には仲介手数料として賃料の1ヶ月分と消費税を頂戴致します。
掲載されている物件データが現況と異なる場合は現況を優先します。
- 物件種目
- 貸店舗
- 住所
- 大阪市淀川区十三本町1丁目
- 最寄駅
阪急神戸線、宝塚線、京都線「十三」駅より徒歩約1分
- 賃料
- 550,000円 (税込)
- 管理費/共益費
- 自主管理
- 保証金
- 5,000,000円 (総額)
- 解約引
- ー
- 敷金
- ー
- 礼金
- 1,000,000円 (別途消費税)
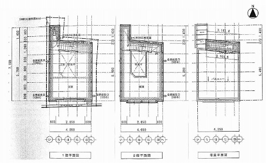
- 敷地面積
- 各階面積
- 1階 24.18㎡(7.31坪)
2階 20.08㎡(6.07坪)
- 延床面積
- 44.26m²(約 13.38坪)
- 建物構造
- 木造・地上2階建
- 築年月
- 2017年9月(平成29年)
- 用途地域
- 商業地域
- 賃貸対象
- 一棟貸
- 駐車スペース
- 無し
- 接道状況
- 設備
- 入居時期
- 相談
- 取引態様
- 媒介
- 備考
引渡し 契約締結から2ヶ月後
現状有姿(一部撤去物有り)
屋上有り
火災保険加入要
保証会社加入要


