新大阪駅近く!倉庫・事務所・店舗 業種ご相談ください!
O-91 SL-12ビル (貸倉庫・貸店舗・貸事務所)
- 大阪市内
- エリア
- 物件の広さ
- 賃料
- 事務所付き倉庫
- 手数料無料
- 当社管理物件
- 貸事務所
- 70坪以上~150坪未満
- 30万円以上~50万円未満
担当者のおすすめポイント
新大阪駅まで徒歩約14分の便利な立地です。
店舗・倉庫・事務所として幅広い業種に対応可能です。
各種ご相談も柔軟にお受けします。
.
.
【㈱スペース・リーダーYouTubeページ】
弊社の企画・管理物件の紹介をしています。
建築風景から完成後の外観・内観までご覧いただけます。
- 登録日
- 2026年2月10日
- 次回更新予定日
- 随時
掲載されている物件データが現況と異なる場合は現況を優先します。
- 物件種目
- 貸店舗・事務所・倉庫
- 住所
- 大阪市淀川区三国本町1丁目16-59
- 最寄駅
阪急宝塚線「三国」駅まで徒歩約9分
各線「新大阪」駅まで徒歩約14分
- 賃料
- 396,000円 (税込)
- 管理費/共益費
- 自主管理
- 保証金
- ー
- 解約引
- ー
- 敷金
- 1,440,000円 (総額)
- 礼金
- 720,000円 (別途消費税)
- 敷地面積
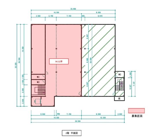
- 991.96m²(約300.06坪)
- 各階面積
- 延床面積
- 311.82m²(約 94.32坪)
- 建物構造
- 鉄骨造・地上3階建
- 築年月
- 1977年11月(昭和52年)
- 用途地域
- 第一種住居地域
- 賃貸対象
- A棟2階部分
- 駐車スペース
- 近隣確保
- 接道状況
- 東側幅員11m
- 設備
- トイレ、荷物用EV(間口:1,300mm 幅:1,500mm 奥行:2,000mm 高さ:2,000mm)
- 入居時期
- 2026年3月下旬
- 取引態様
- 貸主
- 備考
検査済証無し
別プランも有り



