【成約済】
Y-540 尼崎市南武庫之荘12丁目 貸住宅付店舗
- 成約物件
担当者のおすすめポイント
- 登録日
- 2019年9月2日
- 次回更新予定日
- 2022年03月11日
成約時には仲介手数料として賃料の1ヶ月分と消費税を頂戴致します。
掲載されている物件データが現況と異なる場合は現況を優先します。
- 物件種目
- 貸住宅付店舗
- 住所
- 尼崎市南武庫之荘12丁目
- 最寄駅
JR神戸線「立花」駅より徒歩約15分
- 賃料
- 458,333円(税込)
- 管理費/共益費
- 自主管理
- 保証金
- ー
- 解約引
- 相談
- 敷金
- ―
- 礼金
- ―
- 敷地面積
- 各階面積
- 延床面積
- 262.64m²(約 79.44坪)
- 建物構造
- 鉄骨造・地上2階建
- 築年月
- 1981年3月(昭和56年)
- 用途地域
- 賃貸対象
- 一棟貸
- 駐車スペース
- 前面空地有り(無料)
- 接道状況
- 設備
- 入居時期
- 相談
- 取引態様
- 媒介
- 備考
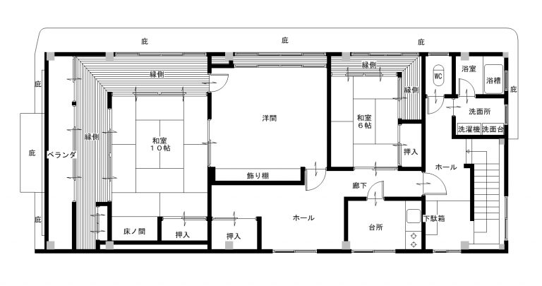
1階 131.39㎡ 39.74坪 店舗
2階 131.25㎡ 39.70坪 住居
合計 262.64㎡ 79.44坪
解約引 1,000,000円(別途消費税)
設備 トイレ(2箇所)、浴室



